Проект вашей квартиры за 5 дней

Идеальный проект со всеми необходимыми чертежами за:

5 000 ₽ / за всю квартиру
Вместо 899₽ за м2

* При бронировании встречи и подписании ремонта по тарифам
 White Box или Фикс-ремонт!

Что входит в стоимость

Обмерочный план
Расстановка мебели
Демонтаж/монтаж
Сантехника
Электрика

Обмерочный план

Он служит основой для дальнейшего проектирования и планировки интерьера, позволяя точно определить, как разместить мебель и другие элементы декора.

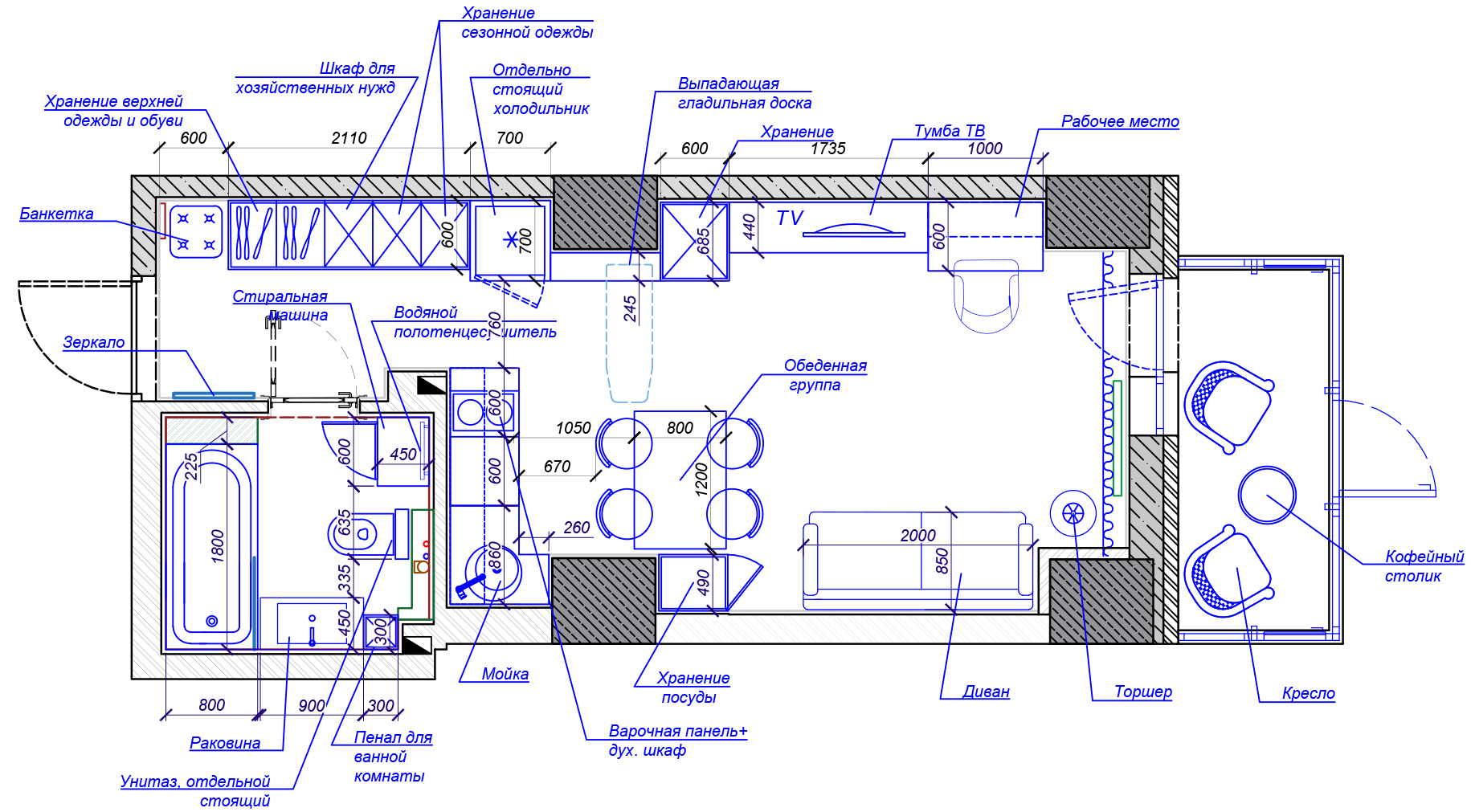
План расстановки мебели и оборудования

План демонтажа

План монтажа

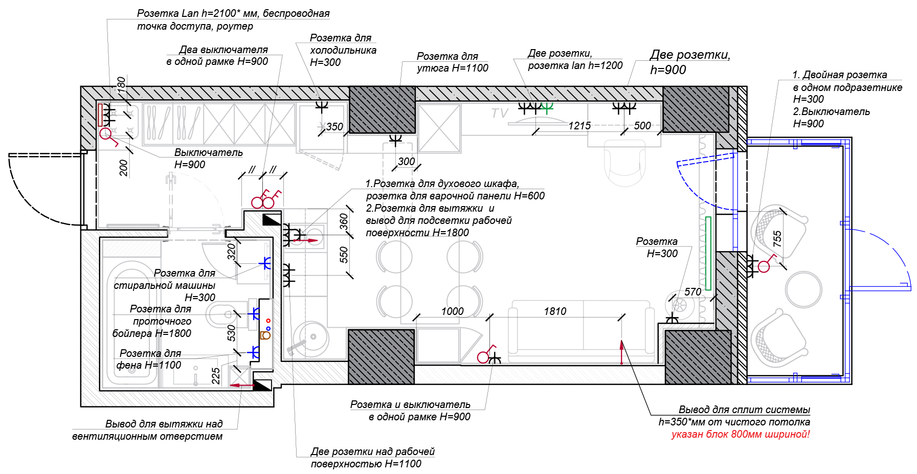
План привязки сантехнического оборудования

План электрики

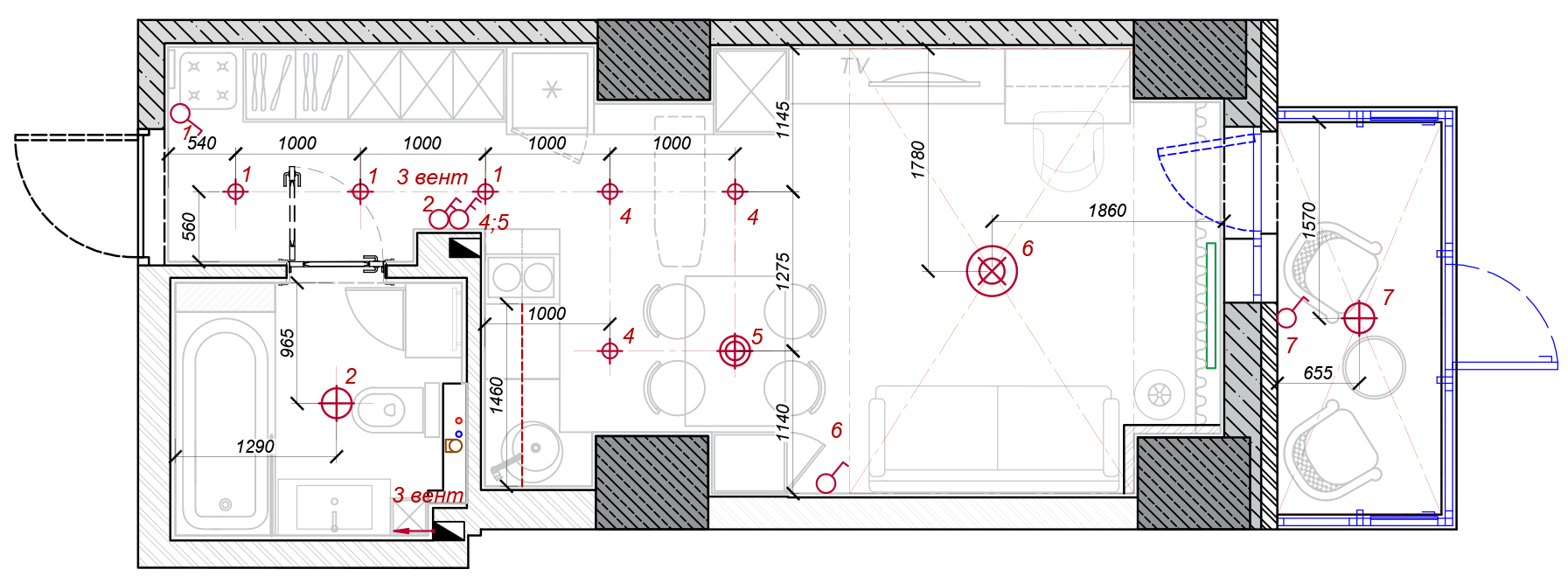
План освещения по группам

Что вы получаете Состав проекта

Выезд дизайнера
на замер

Для обмера всех помещений с точностью до миллиметра, чтобы составить правильный план объекта.

Обмерный

план

Он помогает точно определить расположение мебели и элементов декора, обеспечивая гармоничное использование пространства.

⁠План расстановки

мебели

Вы будете точно знать, какие размеры мебели необходимо купить. Также вы выберите наилучшую расстановку из множества предложенных.

План

демонтажа

На первом этапе важно провести оценку состояния стен, полов и потолков, чтобы определить, какие элементы подлежат сносу.

План

монтажа

В данном плане отражены монтируемые перегородки для идеальной планировки вашего будущего жилья.

План
сантехники

Вам предложат лучшее решение по расстановке стиральной машины, ванной, умывальника. Также этот план необходим для черновой разводки сантехники.

План освещения
и электрики

В состав электрики входят несколько чертежей, отражающих люстры, светильники, бра, розетки и выключали со всеми отступами и высотами.

Готовый
технический проект

Готовые согласованные Вами альбомы, один из которых прорабу, другой мастерам на стройку и третий Вам для выбора чистовых материалов.

Презентация условий тарифа

Дополнительно вы можете заказать
полный проект с 3D визуализацией

Цены на разработку полного дизайн-проекта с 3D визуализацией

Минимальный

Планировочное решение.
Рабочие чертежи для строителей

2100 ₽/м2

Полный

Планировочное решение.
Рабочие чертежи для строителей
3D визуализация

5100 ₽/м2

Максимальный

Планировочное решение.
Рабочие чертежи для строителей
3D визуализация
Ведомость чистовых материалов
Ведомость декора и мебели

6700 ₽/м2

Наши контакты

Москва, ул. Вильгельма Пика, 11, оф. 1011. Бизнес-центр "Ботаника"

WhatsApp

Оставить заявку

Telegram

Обратная связь

Обратная связь

Закрыть